Belépés

×
Itt beléphet mint magánszemély vagy mint ingatlan iroda a profHOUSE.hu országos ingatalan hirdetési portálra.
Ingatlanirodáknak





Elfelejtett jelszó


Magánszemélynek





Lássam a jelszót



Regisztráció

×
A regisztráció az rpass.hu oldalon történik. Ezen oldalunk egy egyszerű regisztrációs felület.Az egyszeri regisztrálás során ezek után több oldalra is be tud majd jelentkezni.
A regisztráció után ezen az oldalon is beléphet a regisztrálás során megadott adatokkal.



az rpass.hu-ra belépés

A regisztráció visszaigazolása után a telefonszámot
az Adataim menüpont alatt adhatja meg.


Céges regisztráció
Ingatlan közvetítő irodáknak!


A regisztráció ingyenes mind a magánszemélyknek mind a cégek számára!

Regisztráció

×
CÉGADATOK





KAPCSOLATTARTÓ








Elolvastam és elfogadom a Hírdetési szabályzatot!! XXXX
A regisztráció során megadott adatok minden esetben ellenőrzésre kerülnek. Mindazok akik nem a megfelelő adatokat adják meg, a rendszerből törölve lesznek. A regisztráció nem egyezik meg az előfizetéssel.A rendszer teljesen automatikus. A további instrukciókat a regisztráció után az előfizetői menüpont alatt találhat. Ha bármi kérdése lenne az előfizetéssel kapcsolatban kérem nézze meg árlistánkat vagy írjon a profhouse kukac profhouse pont hu címre, vagy hívja ügyfélszolgálatunkat a +36.30.43.23.143 -os számon.

Alsóörs, Eladó Családi ház Veszprém megye ,
Ingatlan irányár:46 000 000(2702)
Dinamikus kereső >Családi ház > Alsóörs

Alsóörs, Eladó Családi ház


print Nyomtatás
Alsóörsi Családi ház térképen
hirdetés

Ingatlan paraméterek

Eladó Családi ház

Település: Alsóörs
Megye: Veszprém megye
Ingatlan irányár:46 000 000
Ingatlan alapterület: 112m2
Telek alapterület: 500
Szobák száma: 3
Félszobák száma: 3

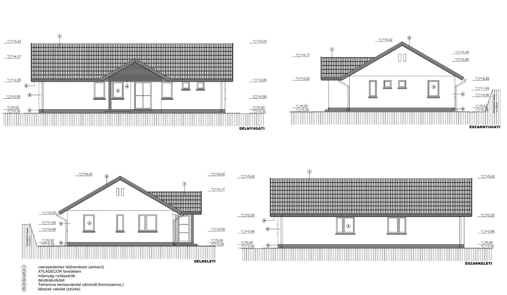
Eladó Családi ház Alsóörs


Új építésű családi ház generál kivitelezése Veszprém és 25 km-es vonzáskörzetében

 

- az ár a családi ház kivitelezését foglalja magába, az építési telket nem

- az ár 112 m2 alap terület megépítésére vonatkozik

- az építményhez legalább 500 m2 telek ajánlott

- tervezés és ár a kivitelezővel való megegyezés szerint  

- energetikei besorolása :  

- falazat: 30-as blokktégla

- szigetelés: 30cm mennyezetben, 20cm oldalfalon, 10 cm padlóban 
- fűtés: elektromos kazán (9kW) és napelem, vagy levegő-víz hőszivattyús fűtési rendszer, igény esetén hűtő-fűtő rendszer
- napelem: 7,65kW mely éves betermelés a hálózatra 7500-9500kW 37Ft/kW-al számolva 300.000-380.000Ft

- hő visszanyerős szellőztető rendszer
- nyílászáró: 3 réteg üveggel, hőáteresztés: 0,6 W/m2 K
- az épület hővesztesége: 4,5kw

- a fal hőáteresztési tényezője: 0,14 W/m2 K

- rezsi kb. 5000 Ft/hó/fő (víz,villany,fűtés,hűtés)

- változtatni a kivitelezővel való megegyezés után lehetséges

- építési határidő: egyeztetés a generál kivitelezővel

 

Amennyiben felkeltettem az érdeklődését kérem hívjon! 06 30 140 3328

Dream-Ing, Álomból Otthont!

Ingatlanról képek:( 5 db kép )

Alsóörs Eladó  Családi ház  Alsóörs Eladó  Családi ház Veszprém megye Alsóörs Eladó  Családi ház  Alsóörs Eladó  Családi ház Veszprém megye Alsóörs Eladó  Családi ház  Alsóörs Eladó  Családi ház Veszprém megye Alsóörs Eladó  Családi ház  Alsóörs Eladó  Családi ház Veszprém megye Alsóörs Eladó  Családi ház  Alsóörs Eladó  Családi ház Veszprém megye
Üzenet küldése ×

Az Ön neve


Az Ön E-mail címe


Az Ön telefonszáma


Üzenet szövege

XXXX

Info az ingatlan hirdetőről






Felhívom Üzenetet küldök


Dream-Ing
Címe:8200,Veszprém



További Alsóörsi ingatlan hirdetések
Alsóörs Családi ház Eladó

Alsóörs Családi ház Eladó

46 000 000 | 112 m2




hirdetés
profHOUSE.hu Eladó ingatlanok, kiadó ingatlanok mobil verzió...