Belépés

×
Itt beléphet mint magánszemély vagy mint ingatlan iroda a profHOUSE.hu országos ingatalan hirdetési portálra.
Ingatlanirodáknak





Elfelejtett jelszó


Magánszemélynek





Lássam a jelszót



Regisztráció

×
A regisztráció az rpass.hu oldalon történik. Ezen oldalunk egy egyszerű regisztrációs felület.Az egyszeri regisztrálás során ezek után több oldalra is be tud majd jelentkezni.
A regisztráció után ezen az oldalon is beléphet a regisztrálás során megadott adatokkal.



az rpass.hu-ra belépés

A regisztráció visszaigazolása után a telefonszámot
az Adataim menüpont alatt adhatja meg.


Céges regisztráció
Ingatlan közvetítő irodáknak!


A regisztráció ingyenes mind a magánszemélyknek mind a cégek számára!

Regisztráció

×
CÉGADATOK





KAPCSOLATTARTÓ








Elolvastam és elfogadom a Hírdetési szabályzatot!! XXXX
A regisztráció során megadott adatok minden esetben ellenőrzésre kerülnek. Mindazok akik nem a megfelelő adatokat adják meg, a rendszerből törölve lesznek. A regisztráció nem egyezik meg az előfizetéssel.A rendszer teljesen automatikus. A további instrukciókat a regisztráció után az előfizetői menüpont alatt találhat. Ha bármi kérdése lenne az előfizetéssel kapcsolatban kérem nézze meg árlistánkat vagy írjon a profhouse kukac profhouse pont hu címre, vagy hívja ügyfélszolgálatunkat a +36.30.43.23.143 -os számon.

Budapest, Eladó Lakás ,
Ingatlan irányár:63 234 850(1568)
Dinamikus kereső >Lakás > Budapest

Budapest, Eladó Lakás


print Nyomtatás
Budapesti Lakás térképen
hirdetés

Ingatlan paraméterek

Eladó Lakás

Település: Budapest
Megye:
Ingatlan irányár:63 234 850
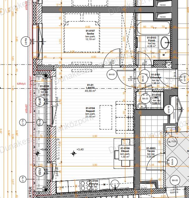
Ingatlan alapterület: 45m2
Telek alapterület: 0
Szobák száma: 2
Félszobák száma: 0

Eladó Lakás Budapest


Budapesten, XIII. kerületben ÚJ ÉPÍTÉSŰ, CSOK-KÉPES TÁRASASHÁZI LAKÁSok eladók!

A társasház a Lőportál városrészen épül, kiválóan megközelíthető, és elérhető!

A társasházban 6 emeleten 27 lakás kerül megépítésre, lifttel, mélygarázzsal és felszíni parkolókkal. A lakások 31 nm-től 73 nm-ig kerülnek kialakításra, jó elrendezéssel, erkéllyel.

Mélygarázs és felszíni parkoló 6 M Ft/db áron vásárolható. A lakásokhoz tárolók is vásárolhatók 750 E Ft/nm áron.

Magas műszaki tartalommal épülő ingatlan, hőszivattyús fűtés és hűtés, magas minőségű nyílászárók, valamint szabadon választható burkolatok, szaniterek.

ZÖLD HITEL, CSALÁDI OTTHONTEREMTÉSI KEDVEZMÉNY (CSOK) és az ILLETÉKKEDVEZMÉNYEK igénybe vehetők, hitelügyintézésben díjtalanul segítséget nyújtunk.

A kivitelező megbízható, leinformálható, a kerületben referenciákkal rendelkezik!

INGYENES HITELÜGYINTÉZÉSSEL tudunk segíteni a legkedvezőbb hitel kiválasztásában!

Ingatlan eladásban kedvezményes feltételekkel tudunk segíteni.

Várjuk megtisztelő hívását időpontegyeztetéshez.

Ingatlanról képek:( 4 db kép )

Budapest Eladó  Lakás  Budapest Eladó  Lakás  Budapest Eladó  Lakás  Budapest Eladó  Lakás  Budapest Eladó  Lakás  Budapest Eladó  Lakás  Budapest Eladó  Lakás  Budapest Eladó  Lakás
Üzenet küldése ×

Az Ön neve


Az Ön E-mail címe


Az Ön telefonszáma


Üzenet szövege

XXXX

Info az ingatlan hirdetőről






Felhívom Üzenetet küldök


Dunakeszi Ingatlanközpont
Címe:2120,Dunakeszi



További Budapesti ingatlan hirdetések
Budapest Lakás Eladó

Budapest Lakás Eladó

48 000 000 | 63 m2
Budapest Lakás Eladó

Budapest Lakás Eladó

53 000 000 | 77 m2
Budapest Lakás Eladó

Budapest Lakás Eladó

45 000 000 | 65 m2
Budapest Lakás Eladó

Budapest Lakás Eladó

31 500 000 | 38 m2




hirdetés
profHOUSE.hu Eladó ingatlanok, kiadó ingatlanok mobil verzió...